ZJ-PLGD粉体配料系统
ZJ-PLGD粉体配料系统
应用:
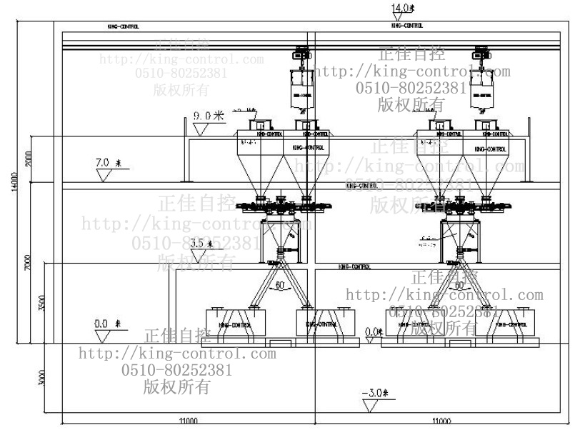
SCR脱销催化剂粉体自动计量配料与输送生产线方案二(固定式),适用于所有SCR脱硝催化剂的生产,可用于蜂窝式、平板式的原料计量配料与输送。
型号:ZJ-PLGD配料系统
方案特点:
u 采用进口称重传感器和ZJ系列称重仪表,计量精度高
u 计量系统采用固定式,减少运动部件,降低故障率,减少称重过程的扬尘问题
u 该系统可同时满足2台混炼机的投料需要,结构简单,故障率低
u 原料计量完成后通过分料装置进入2台混炼机,全密封管道输送,减少粉尘
u 原料仓采用行车转运人工投料的方式,投料区采用除尘系统,减少投料时产生的扬尘。(也可选用气力输送系统,降低劳动强度,减少上料系统的扬尘问题)
u 原料仓配备料位开关,满料与缺料即使报警
u 可选配液体加药系统(A.M.V/MEA/乳酸/氨水/除盐水),与该系统整合在一起,完成混炼机的整体配料
方案缺点:
1.设备总投资较高,每两台混炼机需配一套称重机构和一套料仓,适合大规模生产的应用
方案优点:
1.设备故障点少,故障率低
2.固定式称重,计量精度更高,元件使用寿命长
3.密封性好,外漏粉体少,现场环境好

另我公司可提供原料配方和工艺指导,详情请电话咨询:0510-80252381 18352555593